Description
Une rénovation d’inspiration moderniste, signée Cyrus Ardalan
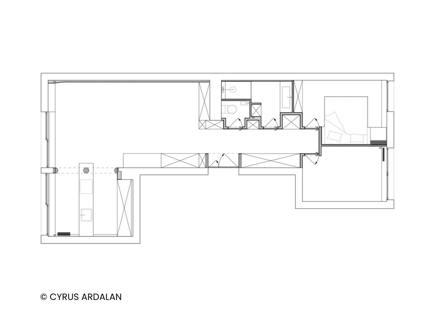
En étage élevé, cet appartement traversant et lumineux de 65 m² est situé dans le quartier du Père Lachaise à Paris. Repensé entièrement par l’architecte Cyrus Ardalan, il se distingue par son design élégant aux influences modernistes.
Depuis l’entrée, on accède à une belle pièce de vie lumineuse, orientée ouest, comprenant les espaces salon, salle à manger et bureau. Le passage du séjour à la cuisine est signifié par un encadrement en pâte de verre, habillant également l’îlot central, sur mesure, de la cuisine et la table de la salle à manger.
Un couloir mène à deux chambres, au calme, sur cour. Ce dégagement dessert également une salle d’eau, ainsi que des toilettes séparées.
L’appartement bénéficie aussi de nombreux rangements, subtilement intégrés dans différentes pièces de mobilier encastrées.
L’ensemble est complété par une cave en sous-sol.
Situé dans le 11ᵉ arrondissement, cet appartement jouit d’une situation idéale non loin du Père Lachaise et à deux pas du métro Philippe Auguste (ligne 2).
Le quartier propose une grande offre de services (marchés locaux, restaurants, commerces de proximité), un large éventail d’activités de loisirs (espaces verts, lieux culturels), ainsi que des établissements scolaires.
La matérialité comme ligne directrice
Cet appartement a été pour Cyrus Ardalan un véritable terrain d’expérimentation, un travail minutieux et cohérent sur la matérialité et les usages, pensés pour enrichir l’expérience d’habiter.
Parmi les matériaux utilisés, le contreplaqué occupe une place centrale, comme dans la plupart des projets de l’architecte. Sa teinte, inspirée des huisseries existantes, structure les volumes et assure une continuité visuelle entre le salon, le couloir et les chambres.
La bibliothèque en contreplaqué, pièce maîtresse de l’espace de vie, se décline aussi en buffet et en espace de travail. Grâce à une porte pivotante à 180 degrés, elle s’ouvre sur le salon et permet de dissimuler le bureau lorsqu’il n’est pas utilisé.
La pâte de verre, référence à l’architecture moderne, trace également une ligne directrice dans ce projet. Présente sur différentes surfaces et éléments de mobilier, îlot de cuisine, table à manger ou encore douche, l’architecte en fait un outil à la fois structurel et fonctionnel. Elle sert tantôt à souligner, tantôt à mettre en relief, ou encore à intégrer discrètement les façades des tiroirs par un calepinage subtil, tout en créant des volumes et des surfaces homogènes.
L’expression d’un langage moderniste
L’ensemble d’habitation, dans lequel s’insère cet appartement, a été conçu à la fin des années 1960, par les architectes Christian de Galéa (1917-2016) et Saczewski. Sa construction intervient en parallèle d’un autre de leurs projets, mené dans le 15ème arrondissement, rue de l’Abbé-Groult.
La résidence est constituée de plusieurs corps de bâtiments, prenant la forme de simples parallélépipèdes rectangles, de hauteurs différentes. Les parties les moins hautes créent une continuité avec le tissu urbain voisin, fait d’immeubles anciens.
Les pilotis en V, sur lesquels reposent les bâtiments, ont été nécessaires pour permettre l’insertion de commerces au rez-de-chaussée. Ces éléments fonctionnels, motivés par une contrainte d’usage, acquièrent une véritable dimension plastique et font aujourd’hui toute la singularité de l’ensemble.
En élévation, sont privilégiées des façades identiques et animées. La linéarité, induite par les garde-corps filants et les travées de baies vitrées, est en effet tempérée par l’ajout de panneaux de pierre placés en quinconce.
© Alice Mesguich
Cyrus Ardalan, l’architecture comme œuvre totale
Architecte et designer diplômé de l’Ecole d’architecture de Versailles, Cyrus Ardalan (1991- ) développe un imaginaire à la croisée de ses racines, de l’architecture vernaculaire, du modernisme minimaliste (notamment l’œuvre de l’architecte et designer Jean Prouvé) et de la mécanique.
Depuis 2020, le travail de son agence se distingue par une approche centrée sur les différentes échelles et la justesse d’usage des matériaux. La diversité de ses projets témoigne de l’étendue de son exploration : de la conception d’une maison bioclimatique au Sénégal (l’architecture de la villa Aram, son premier projet, qui se veut durable et basée sur des savoir-faire locaux), à la rénovation d’appartements parisiens, en passant par la création d’une boutique pour Veja, l’aménagement d’espaces de travail pour une agence de mode, ou encore des recherches sur l’habitat préfabriqué.
Une part importante de son travail porte également sur la transformation de l’existant. Il compose des architectures cohérentes réorganisant les circulations, les volumes et en introduisant des éléments structurants, redonnant une identité contemporaine à ses réhabilitations. Cyrus Ardalan conçoit systématiquement le mobilier comme un prolongement naturel de l’espace architectural.
Infos techniques
Prix net vendeur : 840 000 €
Honoraires agence à la charge du vendeur
Charges de copropriété : 1 124€ par trimestre
Taxe foncière 2025 : 1 538 €
Chauffage collectif au gaz
Huisseries d’origine SV
Une partie du mobilier est inclue dans la vente
Les informations sur les risques auxquels ce bien est exposé sont disponibles sur le site Géorisques : www.georisques.gouv.fr
© Textes Architecture de Collection
© Photos Ludovic Balay et Alice Mesguich
DPE : D – GES : D
Estimation des coûts annuels : entre 930 € et 1 300 € par an, prix moyens des énergies indexés sur les années 2021, 2022 et 2023 (abonnements compris).
















