Description
Un loft à réinventer dans les Usines Bertheau à Ivry-sur-Seine
Aux portes de Paris, ce loft à usage mixte est situé au cœur d’un ancien site industriel entièrement réhabilité et reconverti en habitations et ateliers d’artistes en 2001 par l’agence d’architecture XY. Accolé à l’allée principale, au sein d’une cour arborée et sécurisée, il offre une grande liberté d’aménagement.
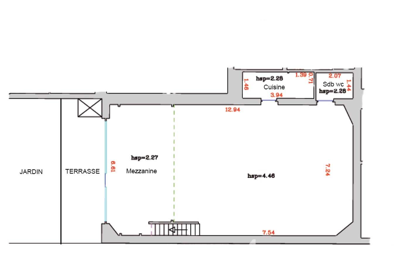
En rez-de-jardin, ce loft, ancien atelier d’accordeurs-facteurs de piano parfaitement isolé acoustiquement, déploie une surface de 130 m² sur 2 niveaux.
Le premier plateau de 107 m² en parquet chêne, libéré de tout aménagement, peut accueillir aussi bien un espace de vie que de travail. Il comprend également un coin cuisine et des sanitaires.
Une mezzanine de 23 m² peut composer une chambre parentale ou un bureau. Elle est facilement démontable, et tout le plateau du rez-de-jardin peut alors profiter d’une hauteur sous plafond de près de 5m, parfaitement isolée phoniquement du fait de son ancienne activité musicale.
A l’extérieur, une terrasse de 23 m² exposée sud-ouest en jouissance privative constitue une espace de vie supplémentaire ouvert sur un jardin central commun à 3 copropriétaires. Cet espace de verdure et l’isolation thermique du loft garantissent le confort d’été.
Ce loft a fait l’objet d’une étude technique afin de doubler les ouvertures en façade et dispose de droits à construire supplémentaires.
Il est complété par une place de stationnement.
A 10 minutes à pied du centre-ville d’Ivry-sur-Seine, de ses commerces et de ses écoles, ce bien dispose d’un cadre de vie préservé et intimiste dans un environnement urbain en pleine expansion. Il est desservi par les lignes de métro 7 et le RER C ainsi que par le tramway, des bus et des Velib’.
« Quai Est », une ancienne laiterie industrielle réhabilitée grâce aux Usines Bertheau
Pour cette résidence, une ancienne laiterie, le cabinet XY Architecture s’est attaché à dédensifier les parcelles, à créer un maximum d’espaces verts et à repenser les circulations par l’aménagement de coursives, de terrasses et de patios extérieurs en créant 3 rangées de constructions. A l’intérieur, les ateliers offrent des espaces confortables et lumineux, aux volumes généreux.
Il faut attendre les années 1980 pour qu’un collectif d’artistes, mené par Pierre Bertheau, décide de redonner vie aux anciennes usines de la couronne parisienne. Guidé par la volonté de créer des lieux de vie et de travail à bas coût pour ses amis artistes, Pierre Bertheau monte le concept des Usines Bertheau en 1985. Il a alors l’idée de créer des sociétés civiles immobilières (SCI), dans l’esprit d’une coopérative, afin que des groupes d’artistes puissent s’associer et mutualiser leurs ressources pour acquérir des entrepôts désaffectés en copropriété. Il s’entoure ensuite d’une équipe d’architectes, pour transformer ces friches en résidences d’ateliers qualitatives, tout en respectant leur forme et leur fonction d’origine. Il met ainsi sur pied onze opérations de réhabilitation depuis 1986, soit plus de 300 ateliers-logements créés en tout.
© Les Usines Bertheau
XY Architecture
Depuis 1987, XY Architecture, dirigée par Xavier ESSELINCK et Yves BOUR, concentre principalement son activité sur la réhabilitation et la reconversion de friches urbaines ou de sites désaffectés. Ils accompagnent notamment de nombreux projets de rénovation des Usines Bertheau.
Qu’il s’agisse de transformer une friche industrielle en ateliers, un garage en loft ou un monument historique en musée, l’agence maîtrise toutes les échelles et tous les usages.
Infos techniques
Prix demandé : 650 000 €
Honoraires à la charge du vendeur
Charges annuelles de copropriété : 1300 €
Taxe foncière : 2275 €
Isolation murs de plafonds HSP : 4m45 actuellement, 4m70 sans l’isolation phonique
Etude technique : ouvertures supplémentaires en façade et construction de mezzanines
Chauffage gaz & chaudière individuelle
Travaux à prévoir
Parts de SCI
Les informations sur les risques auxquels ce bien est exposé sont disponibles sur le site Géorisques : www.georisques.gouv.fr
© Textes & photos Architecture de Collection
CLASSE ENERGIE : C / CLASSE CLIMAT : D
Estimation des coûts annuels : 1 053 € (dont abonnement: 234 €) prix moyens des énergies indexés en aout 2015





















